环境设计专业 《材料与施工工艺》课程实践教学日程手记
环境设计专业的实践教学,是以学院颁发的实践教学指导书为蓝本,结合项目引入教学的特点,展示我院独特的专业特色,实现提升环艺学生的实践技能。
大艺新校区内的建筑装饰规划设计,以及多项室内空间的环境改造方案,多由环境设计专业的老师承担,并把项目引入教学之中。2017年11月13日开始,根据《材料与施工工艺》课程授课内容,环境设计专业对我校图书馆报告厅后端空间,进行画廊展厅的改造设计与施工,再一次真正的实践项目,实战工程,现场教学。内容包括方案设计阶段、材料分析阶段和现场施工体验阶段三部分。
一
方案设计阶段
11月13日—15日,《材料与施工工艺》课程授课第一天,由主讲教师陈妍老师,将此次展厅设计任务对学生进行讲解,讲解过程之中,学生提出了展示设计中会遇到的问题,并将自己的设计思路与老师的设计意图进行思想的碰撞,最终形成设计图纸。
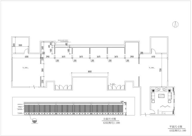
图书馆一楼展厅剖立面图一
图书馆一楼展厅剖立面图二
二
图纸深化与材料分析阶段
11月16日—17日,方案进入图纸深化与材料分析阶段,此阶段要求学生将展厅设计中的细节都要表现在纸上,最终形成施工图纸。与此同时,结合展厅设计的空间需求,认识并学习相关的装饰材料,比如:轻钢龙骨、多层板、纸面石膏板等。与此同时,带领学生参观工地现场。
轻钢龙骨进场,初步定位
图书馆一楼展厅原始图
三
现场施工体验阶段
在方案设计和图纸深化过程中,我们不能忽略的就是要去现场复尺,确保在施工过程中出现设计施工图纸与现场结构或尺寸不符的情况。
11月20日,课程进度正式步入现场施工体验阶段。此阶段,我们的授课地点由一成不变的教室转移到了施工现场,同学们进一步了解现场的结构,包括暖气的位置,消火栓的位置等。
施工人员现场讲解施工步骤
施工人员现场讲解施工步骤
陈妍老师现场讲解龙骨结构
11月21日,经过现场尺寸确定后,由施工现场监理组织工人备料,根据此次图纸,我们所设计的展厅主要采用轻钢龙骨、多层板、纸面石膏板、大白、乳胶漆等作为主要材料。
陈妍老师现场讲解立面造型的施工方法
陈妍老师现场讲解纸面石膏板接缝带样式

陈妍老师与施工人员沟通图纸细节处理(图左)
张延鑫老师与施工方沟通图纸细节处理(图右)
11月22日,施工正式开始,学生们在施工现场学习墙面龙骨的施工工艺,包括沿地龙骨、沿顶龙骨、竖向龙骨和横撑龙骨的基本安装方法。
陈妍老师现场讲解安装构件的处理方法
11月23日,施工进入罩面板安装阶段。学生们现场学习多层板的安装,学习纸面石膏板的安装以及在安装石膏板过程中应注意的事项。
学生与施工人员一起安装纸面石膏板
陈妍老师现场讲解硬包材料的切割方法
11月24日,刮大白乳胶漆阶段。罩面板安装完毕,为了让展板最后呈现的效果更加平整,所以需要在刮大白乳胶漆之前做关键的一道工序:刮腻子,学生们非常直观的体验了腻子粉与水混合的制作过程,并且尝试了刮腻子的过程。
11月25日—26日,安装硬包阶段。在刮大白乳胶漆的同时,我们进行了硬包的制作阶段,待乳胶漆完全干透,就可以安装硬包上墙了。硬包的板与板之间采用了密度板倒角工艺。
指导老师带领学生现场观看施工人员制作硬包过程
11月27日,整体工程验收阶段。完成收尾工程,包括轨道射灯的安装,开关的安装等,随后进行整体工程的验收。学生学习验收过程中应注意的问题。
在工程接近尾声阶段,德赢vwin官方入口院长陈士斌(右)和室内教研室主任陈雷(左)参观展厅现场,并提出意见和建议。
在工程接近尾声阶段,指导老师带领学生参观展厅现场。

















